スマホで物件を見る

ザ・クレストタワー(月島駅から徒歩3分)の購入・売り物件、売却査定・相場・売却価格マンション情報|オフィスランディック株式会社

電話番号営業時間:10:00〜18:00  定休日:日曜日

メールでお問合せ

会員登録

TOPページ >
マンションカタログ >
中央区 >
ザ・クレストタワー

中古マンション ザ・クレストタワー

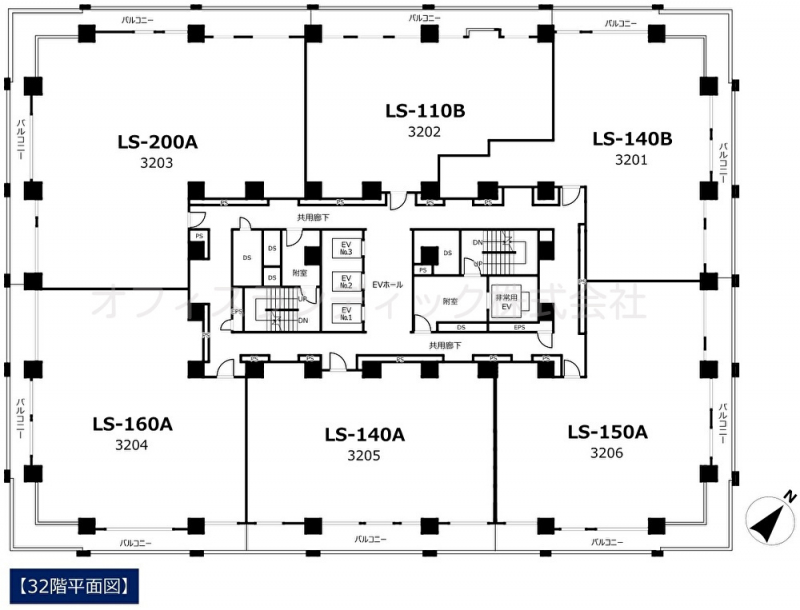
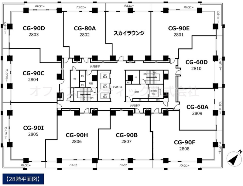
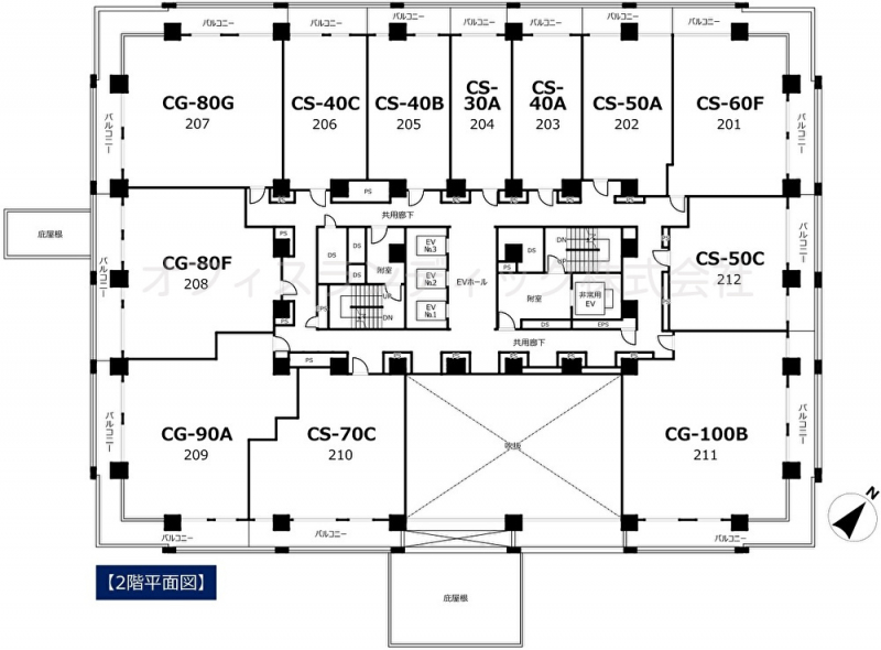
ザ・クレストタワーは東京都中央区佃2-11-6にあるマンションで、最寄り駅は東京メトロ有楽町線の「月島」から徒歩3分の距離にあります。2004年9月に地上32階 地下2階RC造で建てられた全387戸のマンションです。

住所 東京都中央区佃2-11-6
交通 東京メトロ有楽町線
月島 徒歩3分
階数/構造 地上32階 地下2階/RC造
総戸数 387戸  32.58u〜195.03u
築年月 2004年9月
学区 小学校名:佃島小学校
中学校名:佃中学校
マンション購入をお考えの方 売り出したら教えて!

売り出し物件を優先的にご紹介!

マンション売却をお考えの方 探している人がいたら教えて!

まずは無料査定!も可能です

ザ・クレストタワーで掲載中の物件(0件)

★平成16年築・RC造地下2階付32階建・清水建設施工・総戸数387戸の大規模タワーマンション(内廊下設計)・EV:3基(別途、業務用EV:有)
★オートロックシステム&24時間有人管理(夜間警備員)・コンシェルジュサービス:有
★充実の共用施設:スカイラウンジ・フィットネススタジオ・ヒーリングスペース・ゲストルーム・レンタサイクル・各階ゴミステーション
★ペット飼育:可(規約有)★令和2年7月度大規模修繕工事実施済

※各種情報と差異がある場合は現況優先となります。
※建物竣工時に撮影した竣工写真を掲載している場合があります。その場合、現状と異なる可能性があります。
※物件情報の学区情報について
当サイト物件情報に記載されております通学区域(学区)情報は、国土数値情報ダウンロードサービスが提供する小学校区データ【2016年度】及び中学校区データ【2016年度】を元に加工したものですので、記載情報が現在の学区域と異なる場合がございます。 国土数値情報ダウンロードサービスのWEBサイト上で記述通り、データは必ずしも正確とは言えません。また、通学区域(学区)は毎年見直しの対象となりますので、そちらを踏まえ学区情報は参考としてご活用下さい。

規模 地上32階 地下2階
駐輪場
管理形態 委託(通勤)
分譲時売主 (株)ゴールドクレスト
駐車場
用途地域 第二種住居地域
施工 清水建設(株)
管理会社 (株)ゴールドクレストコミュニティ

ザ・クレストタワーで掲載中の物件一覧

掲載中0件(内会員物件0件)

チェックを入れるとまとめてお問合わせができます。

ザ・クレストタワーを
買いたい

売り出したら教えて!

『ザ・クレストタワー』の販売情報を
優先的にお知らせいたします。

ザ・クレストタワーを
売りたい

探している人がいたら教えて!

いくらで売れるのか知りたい方は
まずはカンタン無料査定でご相談下さい!

オフィスランディック株式会社

03-6661-1212

物件番号M108

近隣マンション情報

ザ・クレストタワーにお問い合わせ

必須の項目はご記入をお願いします
  • お問合せ内容必須
    【その他】
  • お名前必須
  • E-mail必須

    ※ご記入いただいたメールアドレス宛てに、お問合せ内容の確認メールをお送りいたします。
    ※Yahoo!メールなどのフリーメールをご利用の場合、迷惑メールフォルダに入る場合があります。
    迷惑メールのフォルダ・設定等をご確認下さい。

  • 電話番号必須

茅場町のレンタルスペース