スマホで物件を見る

サンクタス127(八丁堀駅から徒歩4分)の購入・売り物件、売却査定・相場・売却価格マンション情報|オフィスランディック株式会社

電話番号営業時間:10:00〜18:00  定休日:日曜日

メールでお問合せ

会員登録

TOPページ >
マンションカタログ >
中央区 >
サンクタス127

中古マンション サンクタス127

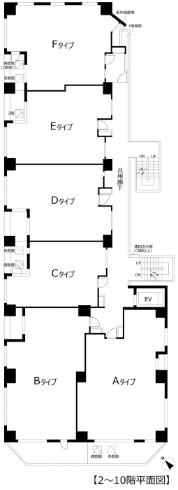
サンクタス127は東京都中央区新川1-27-10にあるマンションで、最寄り駅は東京メトロ日比谷線の「八丁堀」から徒歩4分の距離にあります。2005年11月に地上12階RC造で建てられた全66戸のマンションです。

住所 東京都中央区新川1-27-10
交通 東京メトロ日比谷線
八丁堀 徒歩4分
階数/構造 地上12階/RC造
総戸数 66戸  43.46u〜75.79u
築年月 2005年11月
学区 小学校名:明正小学校
中学校名:銀座中学校
マンション購入をお考えの方 売り出したら教えて!

売り出し物件を優先的にご紹介!

マンション売却をお考えの方 探している人がいたら教えて!

まずは無料査定!も可能です

サンクタス127で掲載中の物件(0件)

★JR京葉線・日比谷線「八丁堀」駅徒歩4分、東西線・日比谷線「茅場町」駅徒歩6分
★2005年(平成17年)築、RC造12階建・オートロック&外壁タイル貼りマンション、総戸数66戸
★宅配BOX:有★各戸キッチンにディスポーザー(生ゴミ粉砕処理機)★ペット飼育:可(規約有)

※各種情報と差異がある場合は現況優先となります。
※建物竣工時に撮影した竣工写真を掲載している場合があります。その場合、現状と異なる可能性があります。
※物件情報の学区情報について
当サイト物件情報に記載されております通学区域(学区)情報は、国土数値情報ダウンロードサービスが提供する小学校区データ【2016年度】及び中学校区データ【2016年度】を元に加工したものですので、記載情報が現在の学区域と異なる場合がございます。 国土数値情報ダウンロードサービスのWEBサイト上で記述通り、データは必ずしも正確とは言えません。また、通学区域(学区)は毎年見直しの対象となりますので、そちらを踏まえ学区情報は参考としてご活用下さい。

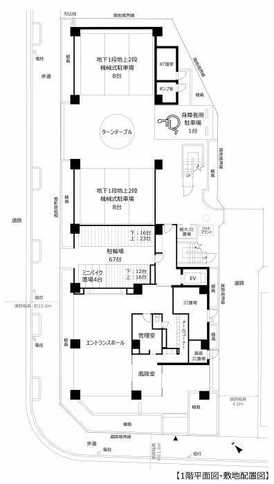
規模 地上12階
駐輪場
管理形態 委託(通勤)
分譲時売主 オリックス不動産(株)
駐車場
用途地域 商業地域
施工 三井住友建設(株)
管理会社 (株)コンバックス

サンクタス127で掲載中の物件一覧

掲載中0件(内会員物件0件)

チェックを入れるとまとめてお問合わせができます。

サンクタス127を
買いたい

売り出したら教えて!

『サンクタス127』の販売情報を
優先的にお知らせいたします。

サンクタス127を
売りたい

探している人がいたら教えて!

いくらで売れるのか知りたい方は
まずはカンタン無料査定でご相談下さい!

オフィスランディック株式会社

03-6661-1212

物件番号M411

近隣マンション情報

  • メインステージ茅場町

    東京都中央区新川1-30-4
    東京メトロ東西線
    茅場町駅 徒歩9分
    総戸数:75戸
    築年数:1999年

    掲載中

    0件
  • パークハウス八丁堀リバーサイド

    東京都中央区湊1-8-10
    JR京葉線
    八丁堀駅 徒歩3分
    総戸数:45戸
    築年数:2011年

    掲載中

    0件
  • クレヴィア東京八丁堀Chuo Minato

    東京都中央区湊1-3-4
    JR京葉線
    八丁堀駅 徒歩3分
    総戸数:33戸
    築年数:2020年

    掲載中

    0件
  • サンクタス東京スクエア

    東京都中央区湊1-14-16
    JR京葉線
    八丁堀駅 徒歩4分
    総戸数:36戸
    築年数:2001年

    掲載中

    0件
  • イニシア中央湊

    東京都中央区湊1
    JR京葉線
    八丁堀駅 徒歩5分
    総戸数:36戸
    築年数:2019年

    掲載中

    0件
  • ハイツ八丁堀

    東京都中央区湊1-9-6
    JR京葉線
    八丁堀駅 徒歩4分
    総戸数:30戸
    築年数:1977年

    掲載中

    0件
  • プレール・ドゥーク銀座EASTV

    東京都中央区湊1-2-2
    JR京葉線
    八丁堀駅 徒歩3分
    総戸数:31戸
    築年数:2006年

    掲載中

    0件
  • ストーク湊町

    東京都中央区湊1-13-14
    JR京葉線
    八丁堀駅 徒歩5分
    総戸数:7戸
    築年数:1982年

    掲載中

    0件
  • 藤和八丁堀コープU

    東京都中央区湊1-9-2
    JR京葉線
    八丁堀駅 徒歩3分
    総戸数:34戸
    築年数:1980年

    掲載中

    0件
  • ルミネ東京日本橋

    東京都中央区湊1-10-6
    JR京葉線
    八丁堀駅 徒歩3分
    総戸数:24戸
    築年数:1997年

    掲載中

    0件

サンクタス127にお問い合わせ

必須の項目はご記入をお願いします
  • お問合せ内容必須
    【その他】
  • お名前必須
  • E-mail必須

    ※ご記入いただいたメールアドレス宛てに、お問合せ内容の確認メールをお送りいたします。
    ※Yahoo!メールなどのフリーメールをご利用の場合、迷惑メールフォルダに入る場合があります。
    迷惑メールのフォルダ・設定等をご確認下さい。

  • 電話番号必須

茅場町のレンタルスペース