スマホで物件を見る

ザ・パークハウス日本橋人形町(人形町駅から徒歩3分)の購入・売り物件、売却査定・相場・売却価格マンション情報|オフィスランディック株式会社

電話番号営業時間:10:00〜18:00  定休日:日曜日

メールでお問合せ

会員登録

TOPページ >
マンションカタログ >
中央区 >
ザ・パークハウス日本橋人形町

中古マンション ザ・パークハウス日本橋人形町

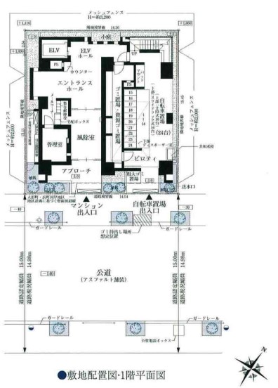
ザ・パークハウス日本橋人形町は東京都中央区日本橋人形町1-1-23にあるマンションで、最寄り駅は東京メトロ日比谷線の「人形町」から徒歩3分の距離にあります。2013年3月に地上13階 地下1階RC造で建てられた全24戸のマンションです。

住所 東京都中央区日本橋人形町1-1-23
交通 東京メトロ日比谷線
人形町 徒歩3分
階数/構造 地上13階 地下1階/RC造
総戸数 24戸  54.09u・63.34u(2タイプ)
築年月 2013年3月
学区 小学校名:日本橋小学校
中学校名:日本橋中学校
マンション購入をお考えの方 売り出したら教えて!

売り出し物件を優先的にご紹介!

マンション売却をお考えの方 探している人がいたら教えて!

まずは無料査定!も可能です

ザ・パークハウス日本橋人形町で掲載中の物件(0件)

★日比谷線「人形町」駅徒歩3分(浅草線「人形町」駅は徒歩4分)、半蔵門線「水天宮前」駅徒歩4分、東西線・日比谷線「茅場町」駅徒歩7分、銀座線・半蔵門線「三越前」駅、新宿線「浜町」駅が共に徒歩9分!
★2013年(平成25年)築、三菱地所レジデンス(株)旧分譲の「ザ・パークハウス」シリーズ、RC造地下1階付13階建・オートロック&内廊下設計&外壁タイル貼りマンション、総戸数24戸(1フロア2住戸)★各戸キッチンにディスポーザー(生ゴミ粉砕処理機)★宅配BOX:有★ペット飼育:可(規約有)

※各種情報と差異がある場合は現況優先となります。
※建物竣工時に撮影した竣工写真を掲載している場合があります。その場合、現状と異なる可能性があります。
※物件情報の学区情報について
当サイト物件情報に記載されております通学区域(学区)情報は、国土数値情報ダウンロードサービスが提供する小学校区データ【2016年度】及び中学校区データ【2016年度】を元に加工したものですので、記載情報が現在の学区域と異なる場合がございます。 国土数値情報ダウンロードサービスのWEBサイト上で記述通り、データは必ずしも正確とは言えません。また、通学区域(学区)は毎年見直しの対象となりますので、そちらを踏まえ学区情報は参考としてご活用下さい。

規模 地上13階 地下1階
駐輪場
管理形態 委託(通勤)
分譲時売主 三菱地所レジデンス・JX日鉱日石不動産
駐車場 なし
用途地域 商業地域
施工 大日本土木(株)
管理会社 三菱地所コミュニティ(株)

ザ・パークハウス日本橋人形町で掲載中の物件一覧

掲載中0件(内会員物件0件)

チェックを入れるとまとめてお問合わせができます。

ザ・パークハウス日本橋人形町を
買いたい

売り出したら教えて!

『ザ・パークハウス日本橋人形町』の販売情報を
優先的にお知らせいたします。

ザ・パークハウス日本橋人形町を
売りたい

探している人がいたら教えて!

いくらで売れるのか知りたい方は
まずはカンタン無料査定でご相談下さい!

オフィスランディック株式会社

03-6661-1212

物件番号M582

近隣マンション情報

ザ・パークハウス日本橋人形町にお問い合わせ

必須の項目はご記入をお願いします
  • お問合せ内容必須
    【その他】
  • お名前必須
  • E-mail必須

    ※ご記入いただいたメールアドレス宛てに、お問合せ内容の確認メールをお送りいたします。
    ※Yahoo!メールなどのフリーメールをご利用の場合、迷惑メールフォルダに入る場合があります。
    迷惑メールのフォルダ・設定等をご確認下さい。

  • 電話番号必須

茅場町のレンタルスペース