スマホで物件を見る

アクシルコート銀座イースト(有楽町駅から徒歩3分)の購入・売り物件、売却査定・相場・売却価格マンション情報|オフィスランディック株式会社

電話番号営業時間:10:00〜18:00  定休日:日曜日

メールでお問合せ

会員登録

TOPページ >
マンションカタログ >
中央区 >
アクシルコート銀座イースト

中古マンション アクシルコート銀座イースト

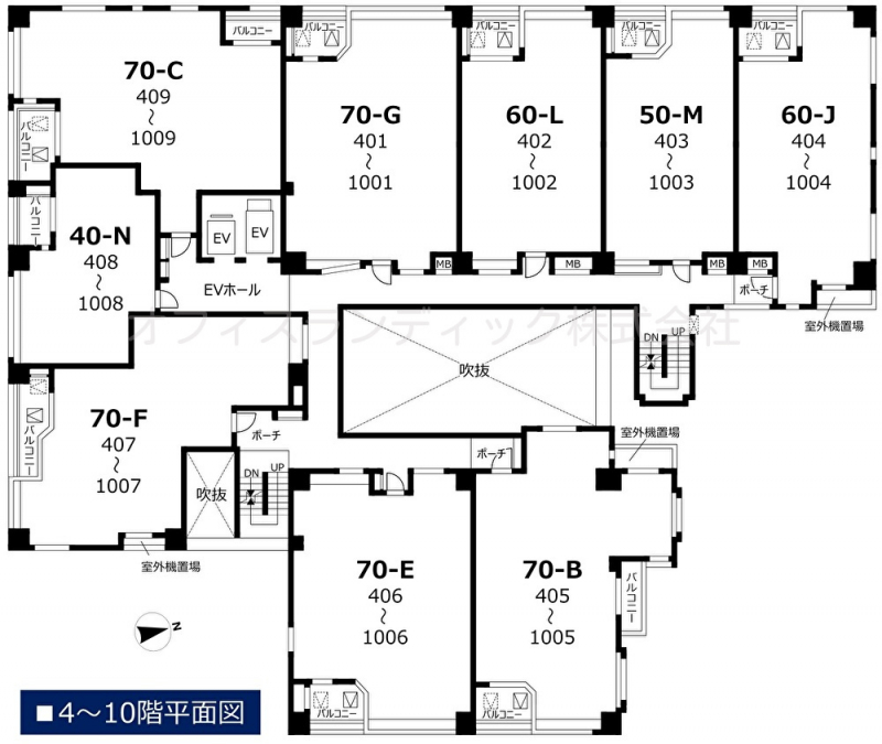
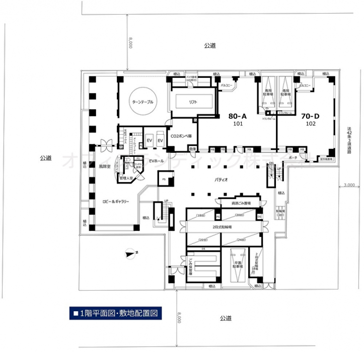
アクシルコート銀座イーストは東京都中央区新富1-11-10にあるマンションで、最寄り駅は東京メトロ有楽町線の「有楽町」から徒歩3分の距離にあります。2001年11月に地上12階 地下1階SRC造で建てられた全105戸のマンションです。

住所 東京都中央区新富1-11-10
交通 東京メトロ有楽町線
有楽町 徒歩3分
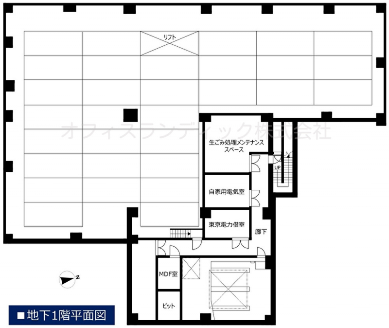
階数/構造 地上12階 地下1階/SRC造
総戸数 105戸   25.70u〜73.11u
築年月 2001年11月
学区 小学校名:京橋築地小学校
中学校名:銀座中学校
マンション購入をお考えの方 売り出したら教えて!

売り出し物件を優先的にご紹介!

マンション売却をお考えの方 探している人がいたら教えて!

まずは無料査定!も可能です

アクシルコート銀座イーストで掲載中の物件(0件)

★有楽町線「新富町」駅徒歩3分、「銀座」も生活圏!平成13年築、住友不動産旧分譲の全105邸。
★ホテルライクなコンシェルジュサービス有り。高級感を醸し出すグランドピアノが設置されたロビーに緑豊かな屋上庭園までもがございます。
★オートロックシステム★ALSOKセキュリティシステム導入済★宅配BOX:有★ペット飼育:可(細則有)

※各種情報と差異がある場合は現況優先となります。
※建物竣工時に撮影した竣工写真を掲載している場合があります。その場合、現状と異なる可能性があります。
※物件情報の学区情報について
当サイト物件情報に記載されております通学区域(学区)情報は、国土数値情報ダウンロードサービスが提供する小学校区データ【2016年度】及び中学校区データ【2016年度】を元に加工したものですので、記載情報が現在の学区域と異なる場合がございます。 国土数値情報ダウンロードサービスのWEBサイト上で記述通り、データは必ずしも正確とは言えません。また、通学区域(学区)は毎年見直しの対象となりますので、そちらを踏まえ学区情報は参考としてご活用下さい。

規模 地上12階 地下1階
駐輪場
管理形態 委託(通勤)
分譲時売主 住友不動産建物サービス(株)
駐車場
用途地域 商業地域
施工 東海興業(株)
管理会社 住友不動産建物サービス(株)

アクシルコート銀座イーストで掲載中の物件一覧

掲載中0件(内会員物件0件)

チェックを入れるとまとめてお問合わせができます。

アクシルコート銀座イーストを
買いたい

売り出したら教えて!

『アクシルコート銀座イースト』の販売情報を
優先的にお知らせいたします。

アクシルコート銀座イーストを
売りたい

探している人がいたら教えて!

いくらで売れるのか知りたい方は
まずはカンタン無料査定でご相談下さい!

オフィスランディック株式会社

03-6661-1212

物件番号M77

近隣マンション情報

  • グランヴァン銀座東

    東京都中央区入船2-5-8
    都営浅草線
    宝町駅 徒歩11分
    総戸数:57戸
    築年数:2003年

    掲載中

    0件
  • ガラ・ステージ京橋

    東京都中央区入船2-6-1
    都営浅草線
    宝町駅 徒歩10分
    総戸数:133戸
    築年数:2000年

    掲載中

    0件
  • ガラ・シティ京橋

    東京都中央区入船2-3-11
    都営浅草線
    宝町駅 徒歩10分
    総戸数:68戸
    築年数:2002年

    掲載中

    0件
  • 築地ハイツ 

    東京都中央区入船3-2-9
    都営浅草線
    宝町駅 徒歩8分
    総戸数:39戸
    築年数:1981年

    掲載中

    0件
  • ライオンズマンション入船

    東京都中央区入船2-2-13
    都営浅草線
    宝町駅 徒歩9分
    総戸数:18戸
    築年数:1978年

    掲載中

    0件
  • CONOE銀座イースト

    東京都中央区新富1-4-7
    都営浅草線
    宝町駅 徒歩5分
    総戸数:27戸
    築年数:2013年

    掲載中

    0件
  • ロイヤルプラザ新富

    東京都中央区新富1-6-11
    都営浅草線
    宝町駅 徒歩7分
    総戸数:10戸
    築年数:1983年

    掲載中

    0件
  • ライオンズマンションベルコート新富町

    東京都中央区新富1-13-24
    都営浅草線
    宝町駅 徒歩4分
    総戸数:17戸
    築年数:1981年

    掲載中

    0件
  • マキプラザ

    東京都中央区新富1-15-11
    都営浅草線
    宝町駅 徒歩6分
    総戸数:23戸
    築年数:1980年

    掲載中

    0件
  • ザ・パークハウス東銀座

    東京都中央区新富2-7-7
    都営浅草線
    宝町駅 徒歩9分
    総戸数:36戸
    築年数:2015年

    掲載中

    0件

アクシルコート銀座イーストにお問い合わせ

必須の項目はご記入をお願いします
  • お問合せ内容必須
    【その他】
  • お名前必須
  • E-mail必須

    ※ご記入いただいたメールアドレス宛てに、お問合せ内容の確認メールをお送りいたします。
    ※Yahoo!メールなどのフリーメールをご利用の場合、迷惑メールフォルダに入る場合があります。
    迷惑メールのフォルダ・設定等をご確認下さい。

  • 電話番号必須

茅場町のレンタルスペース