スマホで物件を見る

ウイン青山(青山一丁目駅から徒歩2分)の購入・売り物件、売却査定・相場・売却価格マンション情報|オフィスランディック株式会社

電話番号営業時間:10:00〜18:00  定休日:日曜日

メールでお問合せ

会員登録

TOPページ >
マンションカタログ >
港区 >
ウイン青山

中古マンション ウイン青山

ウイン青山は東京都港区南青山2-2-15にあるマンションで、最寄り駅は東京メトロ銀座線の「青山一丁目」から徒歩2分の距離にあります。1980年1月に地上14階 地下3階SRC・RC造で建てられた全473戸のマンションです。

住所 東京都港区南青山2-2-15
交通 東京メトロ銀座線
青山一丁目 徒歩2分
階数/構造 地上14階 地下3階/SRC・RC造
総戸数 473戸  15.50u〜48.31u
築年月 1980年1月
学区 小学校名:青南小学校
中学校名:青山中学校
マンション購入をお考えの方 売り出したら教えて!

売り出し物件を優先的にご紹介!

マンション売却をお考えの方 探している人がいたら教えて!

まずは無料査定!も可能です

ウイン青山で掲載中の物件(1件)

★銀座線・半蔵門線・大江戸線「青山一丁目」駅徒歩2分(最寄りの出入口は「5番」)★1980年(昭和55年)築、SRC・RC造地下3階付14階建、総戸数473戸の大規模マンション★1階にはコンビニエンスストアや各種飲食店をはじめコインランドリー室までもがあり、コンシェルジュが待機する2階フロントの並びにはカフェもあります。★24時間有人管理(夜間:警備員)&ホテルライクな内廊下設計!

※各種情報と差異がある場合は現況優先となります。
※建物竣工時に撮影した竣工写真を掲載している場合があります。その場合、現状と異なる可能性があります。
※物件情報の学区情報について
当サイト物件情報に記載されております通学区域(学区)情報は、国土数値情報ダウンロードサービスが提供する小学校区データ【2016年度】及び中学校区データ【2016年度】を元に加工したものですので、記載情報が現在の学区域と異なる場合がございます。 国土数値情報ダウンロードサービスのWEBサイト上で記述通り、データは必ずしも正確とは言えません。また、通学区域(学区)は毎年見直しの対象となりますので、そちらを踏まえ学区情報は参考としてご活用下さい。

規模 地上14階 地下3階
駐輪場
管理形態 委託(通勤)
分譲時売主 大和土地建物(株)
駐車場 なし
用途地域 商業地域
施工 (株)間組
管理会社 (株)グッドライフパートナーズ

ウイン青山で掲載中の物件一覧

掲載中1件(内会員物件0件)

チェックを入れるとまとめてお問合わせができます。
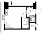
ウイン青山6F(オーナーチェンジ!) 6階
価格ご契約済 広さ1R(17.5m2採光面西

詳細

ウイン青山を
買いたい

売り出したら教えて!

『ウイン青山』の販売情報を
優先的にお知らせいたします。

ウイン青山を
売りたい

探している人がいたら教えて!

いくらで売れるのか知りたい方は
まずはカンタン無料査定でご相談下さい!

オフィスランディック株式会社

03-6661-1212

物件番号港M-002

近隣マンション情報

    ウイン青山にお問い合わせ

    必須の項目はご記入をお願いします
    • お問合せ内容必須
      【その他】
    • お名前必須
    • E-mail必須

      ※ご記入いただいたメールアドレス宛てに、お問合せ内容の確認メールをお送りいたします。
      ※Yahoo!メールなどのフリーメールをご利用の場合、迷惑メールフォルダに入る場合があります。
      迷惑メールのフォルダ・設定等をご確認下さい。

    • 電話番号必須

    茅場町のレンタルスペース